Pour les nouveaux projets, nous recommandons la série de chaînes porte-câbles E4.32 techniquement optimisée de la gamme modulaire igus® E4.1.
En cas de questions sur ces chaînes, veuillez vous adresser à votre interlocuteur igus® . Merci pour votre compréhensionSérie E4.32
Configurez ici votre propre Système de Chaînes Porte-Câbles. Toutes les saisies et modifications seront enregistrées dans la liste des produits se trouvant en fin de page.
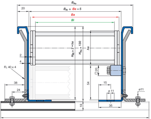
Série 280 - Chaîne avec entretoises à tous les maillons
1. Entretoises de la chaîne porte-câbles amovibles des deux côtés
2. Nombreuses variantes de division interne
3. Combinaison possible de sections fermées et ouvertes
4. Butée à "frein" pour réduire le niveau sonore
5. Surfaces de glissement optimisées
6. Entretoises en plastique larges ménageant les câbles
7. Couvercle de la gaine porte-câbles pivotant
et amovible
8. Eléments de fixation KMA avec
possibilité de fixation "sur tout le pourtour"
9. Eléments de fixation rigides ou oscillants disponibles
10. Option - serre-câbles à rail en C intégré avec clips chainfix ou peignes serre-câbles
11. Egalement disponible avec double rayon de courbure RBR !
E4/00-NC = chaîne porte-câbles également disponible sans précontrainte
Largeurs intérieures Bi disponibles : 50 à 400 mm
Rayons de courbure R disponibles : 63 à 300 mm
Pas : 56 mm / maillon = 18 maillons/m