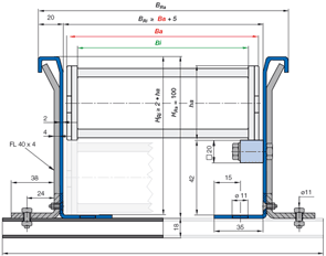
Ondersteuning van het onderste deel van de rups - modulaire set, afleggoot uit één stuk voor de onderloop van de kabelrups. Uw breedte, hoogte en kleur - we leveren de ideale kabelrups, samen met het afleggoot systeem, installatieklaar voor op uw machine of toepassing. Bespaar tijd op inkoop en ontwerp.
- Compleet systeem, installatieklaar
- Voorkomt kostbare maatwerk ontwerpen
- Compatibel met vele kabelrupsbreedtes
- Eenvoudige installatie op uw machine, op profielen of met wandbevestigingselementen
- Leverbaar in 2 typen en 4 uitvoeringen
Voor de geselecteerde rups is een leggoot niet beschikbaar.